Avenue J-12, Lancaster, CA

$72,500

Previous Next

2.50

Acres

About Avenue J-12

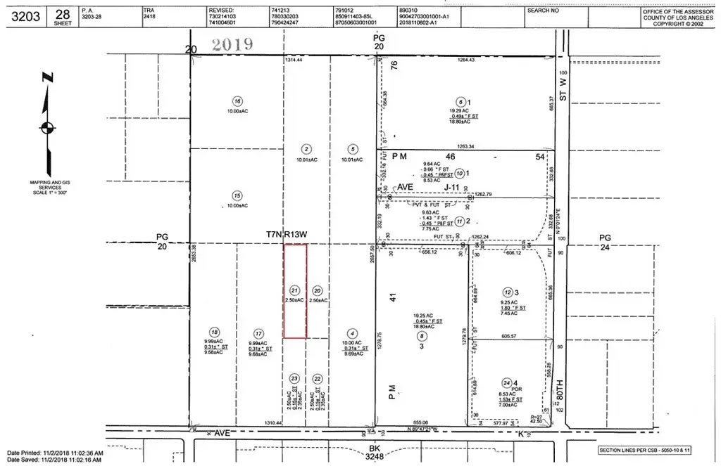
Lancaster -West / 2.5 acres just west of 80th West. Build your country home, start a farm, or hold for future investment. Many possibilities. Very close to solar fields. Only about 15 minutes from town.

Features of Avenue J-12

MLS® # SR25010554
Price $72,500
Acres 2.50
Type Land
Sub-Type Lots/Land
Status Active

Community Information

Address Avenue J-12
Area LANCASTER (93536)
City Lancaster
County Los Angeles
State CA
Zip Code 93536

Amenities

Utilities N/K
Is Waterfront No
Has Pool Yes

Interior

Fireplace Yes

Additional Information

Date Listed January 13th, 2025
Days on Market 170
Foreclosure No
Short Sale No
RE / Bank Owned No

Listing Details

OfficeHomeBased Realty

Listing Map

Request a Showing

Provide a valid email address.
When would you like to view this property?