15801 29th Ave, Clearlake, CA

$270,000

Previous Next

3

Beds

2

Baths

1,124

Square feet

0.11

Acres

About 15801 29th Ave

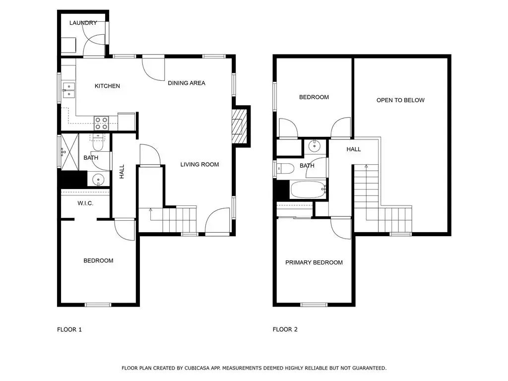
Welcome Home to this turn-key cutie. Assumable 3.625% FHA loan!!! Ready for new owners with new carpet and fresh paint throughout. 3 BD/ 2BA home boast an open floor plan with cathedral ceilings in the main living area, making the space feel grand. Abundance of natural light makes the living space even more delightful. Wood burning fireplace in the main living area creates the perfect ambiance on cool evenings. Maintain climate comfort with energy efficient mini split. Downstairs features laundry/ mudroom, kitchen which opens to dining and living room, with the convivence of 1 bedroom and 1 bathroom. While moseying your way upstairs, enjoy the view from the open staircase that overlooks into the living room. Located upstairs, one will find 2 bedrooms and 1 bathroom. Located just out the back door is a small porch that overlooks that backyard and just a few steps from the detached 2 car garage. Conveniently located less than 5 minutes to Walmart, Starbucks, hospitals, doctor's offices, and community college. Clearlake is located approximately 2.5 hrs to San Francisco, 2 hrs to Sacramento, and about an 1.5hr from Santa Rosa.

Features of 15801 29th Ave

MLS® # LC25199185
Price $270,000
Bedrooms 3
Bathrooms 2.00
Full Baths 2
Square Footage 1,124
Acres 0.11
Year Built 2006
Type Residential
Sub-Type Detached
Status Active

Community Information

Address 15801 29th Ave
Area CLEARLAKE (95422)
City Clearlake
County Lake
State CA
Zip Code 95422

Amenities

Parking Spaces 5
Parking Garage
# of Garages 1
View Neighborhood
Is Waterfront No
Has Pool No
Pool N/K

Interior

Interior Features Formica Counters,Living Room Deck Attached
Appliances Dishwasher,Refrigerator,Electric Range
Cooling Dual
Fireplace Yes
Fireplaces FP in Living Room
# of Stories 2
Stories 2 Story

Exterior

Roof Composition

Additional Information

Date Listed September 1st, 2025
Days on Market 28
Zoning RES
Foreclosure No
Short Sale No
RE / Bank Owned No

Listing Details

OfficeTimothy Toye and Associates

Listing Map

Request a Showing

Provide a valid email address.
When would you like to view this property?