Avenue H, Lancaster, CA

$15,000

Previous Next

2.51

Acres

About Avenue H

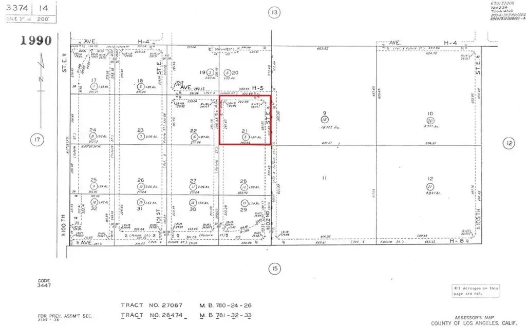
APN: 3374-014-005 Coordinates: 34.714611, -117.947861 2.51 acres for sale in LA County. This vacant lot is located in the Roosevelt area of Lancaster near the corner of E Ave H and 100th St E. Zoned LCA21, per county records.

Features of Avenue H

MLS® # IV25111931
Price $15,000
Acres 2.51
Type Land
Sub-Type Lots/Land
Status Active

Community Information

Address Avenue H
Area LANCASTER (93535)
City Lancaster
County Los Angeles
State CA
Zip Code 93535

Amenities

Is Waterfront No
Has Pool Yes

Interior

Fireplace Yes

Additional Information

Date Listed May 19th, 2025
Days on Market 121
Foreclosure No
Short Sale No
RE / Bank Owned No

Listing Details

OfficeHOME & LAND SOURCE

Listing Map

Request a Showing

Provide a valid email address.
When would you like to view this property?