5150 S Western, Los Angeles, CA

$925,000

Previous Next

0.15

Acres

About 5150 S Western

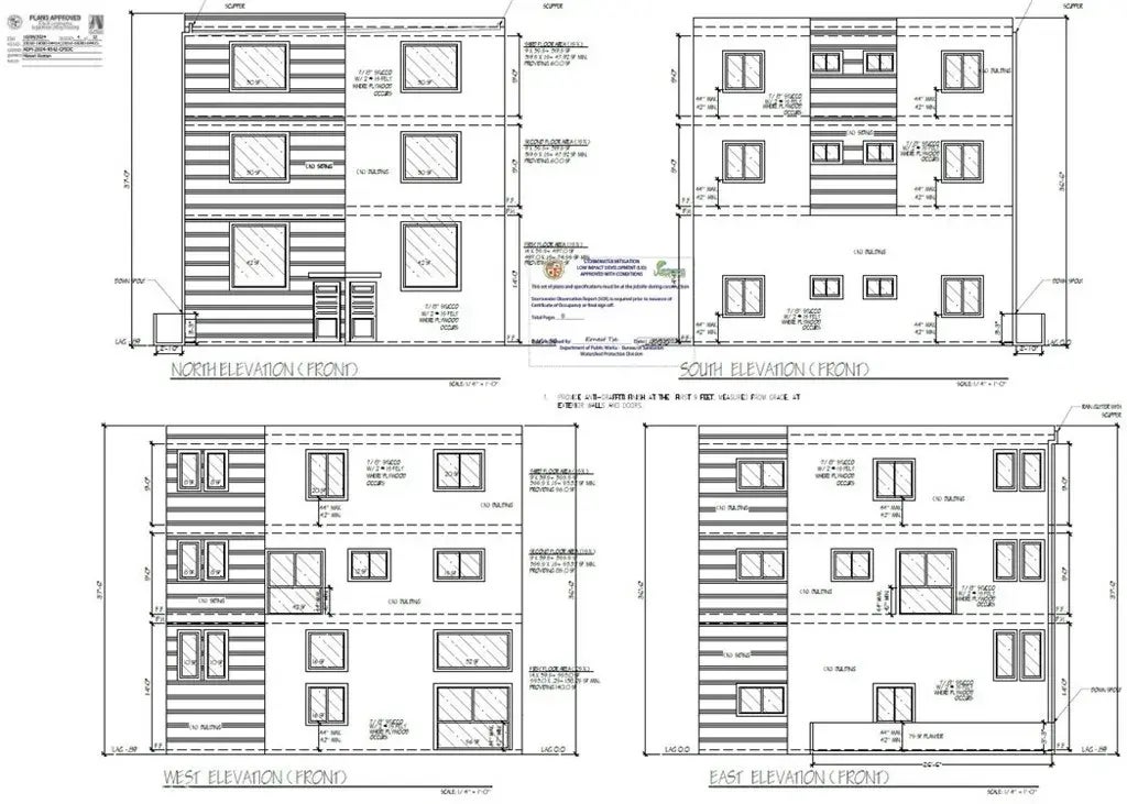
Prime Development Opportunity Vacant Land with RTI Plans! Presenting an outstanding opportunity for developers and investors: vacant land with Ready-to-Issue (RTI) plans to construct 4 luxurious three-story units in the form of two duplexes. Each unit is thoughtfully designed with: 5 bedrooms and 5 bathrooms per unit a total building area of 8,412 sqft across all units. Modern layouts offering functionality and style. No RSO and Not subject to SB8 regulations, Streamlined project ready to go! Located in a desirable area, this property is perfect for those seeking to maximize their return on investment with a turnkey development opportunity. Buyer to perform their own investigations and due diligence regarding all aspects of the property, plans, and development. This is a rare chance to build an impressive projectdon't miss out!

Features of 5150 S Western

MLS® # CV25126614
Price $925,000
Acres 0.15
Type Land
Sub-Type Lots/Land
Status Active

Community Information

Address 5150 S Western
Area LOS ANGELES (90062)
City Los Angeles
County Los Angeles
State CA
Zip Code 90062

Amenities

Is Waterfront No
Has Pool Yes

Interior

Fireplace Yes

Additional Information

Date Listed June 5th, 2025
Days on Market 26
Foreclosure No
Short Sale No
RE / Bank Owned No

Listing Details

OfficeOPTION ONE REALTY & INVESTMENT

Listing Map

Request a Showing

Provide a valid email address.
When would you like to view this property?